Building Project

We are expanding our parking and interior to better serve the Lord!

SUMMARY:

Phases 1A & 1B — EXTERIOR WORK

Expand Parking and Create Storm Water Management Facilities

Phase 1A — Scope of Work:

1. Create additional parking in the rear of the church.

2. Create storm water management facilities.


Phase 1A — Cost Breakdown: 

1. Erosion Sediment Control Measures: $19,000

2. Earthworks: $39,000

3. Stormwater Management (SWM) Facilities: $47,800

4. Utilities: $38,550

5. Demolition/Removal: $350

6. Parking Lot and Road Entrance: $23,300


Phase 1A — Total Cost = $168,000

Phase 1A — Improvements


1. We will go from 17 parking spaces to 34 parking spaces.


2. We will eliminate the swampy area between us and our neighbors.


3. The state-of-the-art underground drainage system and beautifully landscaped micro-bioretention facilities will take care of stormwater in an environmentally friendly way for years to come.

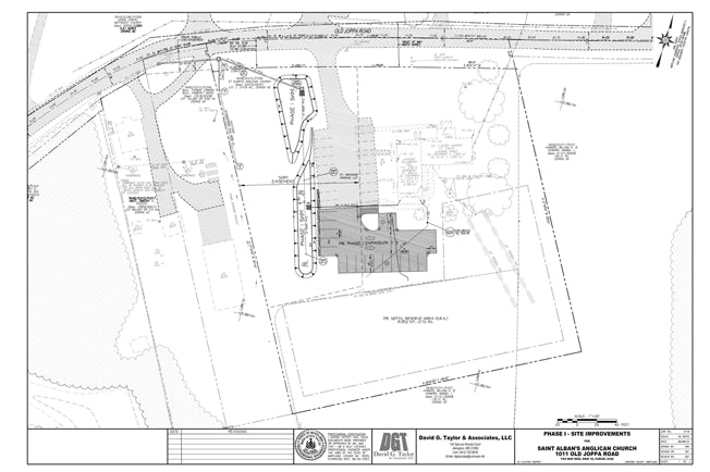
Tap on the picture below to see the plans for phase 1A!

Phase 1B — Scope of Work:

1. Create additional parking in the front of the church.

2. Create sidewalks, steps, etc.


Phase 1B — Cost Breakdown: 

1. Erosion Sediment Control Measures: $4,800

2. Earthworks: $23,150

3. Stormwater Management (SWM) Facilities: $9,400

4. Demolition/Removal: $21,650

5. Flat Concrete: $26,000

6. Parking Lot and Road Entrance: $71,300


Phase 1B — Total Cost = $158,800

Phase 1B — Improvements


1. We will go from 34 parking spaces to 41 parking spaces. (We currently have only 17!)


2. We will have beautiful walkways, stairs, exterior lighting, and a new main entrance.


3. We will have gorgeous landscaping with spices native to our area.

Tap on the picture below to see the plans for phase 1A!

Here is a brief video on Phases 1A & 1B — the exterior work we have planned!